Masaryčka Business District Centrum navržené světoznámou architektkou Zahou Hadid tvoří zejména dvě budovy, které dohromady nabízí 20 800 m² kancelářské plochy prestižní třídy AAA a 4 700 m2 prémiové obchodní plochy.
Podmínkou nejvyšší certifikace LEED byl maximálně efektivní systém nakládání se srážkovými vodami, který jsme doplnili o filtraci a dezinfekci pitné vody.
Profil zákazníka
Penta Real Estate, součást investiční skupiny Penta Investments, je klíčovým hráčem na poli developmentu nemovitostí ve střední Evropě. Společnost se profiluje jako strategický investor s dlouhodobou vizí, jejímž cílem je vytvářet nadčasové a hodnotné projekty, které přinášejí přidanou hodnotu městskému prostředí, komunitám i investorům.
Penta Real Estate se specializuje na výstavbu rezidenčních, kancelářských a multifunkčních projektů prémiové kvality. Vývojová strategie společnosti je postavena na důsledném urbanistickém plánování, spolupráci s renomovanými architektonickými studii a využívání nejmodernějších technologií ve výstavbě.
Skupina dlouhodobě klade důraz na udržitelný rozvoj a ekologicky odpovědnou výstavbu. Proto systematicky integruje environmentální standardy do všech fází developmentu – od akvizice pozemků až po samotnou realizaci a správu objektů.
Součástí této strategie je certifikace budov dle mezinárodních standardů LEED a BREEAM, implementace energeticky úsporných technologií a obnovitelných zdrojů energie a maximální využití recyklovaných a lokálních materiálů. Důraz je také kladen na ochranu biodiverzity a zelené infrastruktury ve městském prostředí
Penta Real Estate vnímá udržitelnost nejen jako součást své společenské odpovědnosti, ale jako strategický pilíř pro budoucí konkurenceschopnost a tvorbu dlouhodobé hodnoty.

Potřeba zákazníka
Vzhledem k maximálnímu důrazu na udržitelnost a vliv zástavby na prostředí města chtěl zákazník snížit spotřebu pitné vody tím, že pro méně náročné účely (splachování, zalévání) využije vodu dešťovou.
Zároveň tak mělo být dosaženo snížení zátěže kanalizace, neboť srážková voda nebude odtékat do kanalizace, ale bude využita přímo na místě, což je šetrné k související infrastruktuře.
Současné bylo zákazníkovou ambicí přihlásit se k podpoře ekologického životního stylu a obecně zodpovědné výstavby.
Vedle systému úpravy srážkových vod jsme pro zákazníka navrhli systém efektivní filtrace a UV dezinfekce pitné vody.
Vstupní parametry
Zadání pro návrh technologie úpravy srážkových vod pro splachování toalet pracuje především s kalkulací nátoku v závislosti na ploše jímání dešťové vody.
V případě projektu Masaryčka se jedná o cca 3300 m2 zelených střech, 800 m2 pobytových ploch a zhruba 420 m2 povrchů mezi objekty a na terasách dílčích technologií.
Využití srážkových vod až z 90 % plochy řešeného území umožnilo splnění nejvyšších kritériií certifikace LEED.

Naše nabídka
Náš návrh systému filtrace a dezinfekce pitné vody + úpravy dešťové vody pro splachování WC, pisoárů a výlevek zahrnuje mimo jiné tyto komponenty:
- Přepážkový filtr na studenou vodu s automatickým proplachem
- Průmyslový filtr na studenou a teplou vodu s automatickým proplachem
- Plně automatický, časově řízený pískový filtr pro filtraci užitkové vody
- Zařízení Scavenger
- Sklepní nádrž o objemu 4000 l
- Nízkotlaká UV výbojka 254 nm se zvýšeným výkonem
- Řídící systém úpravny vody KONtrol 01
- Nádržový systém EKOTECH RainFill 200
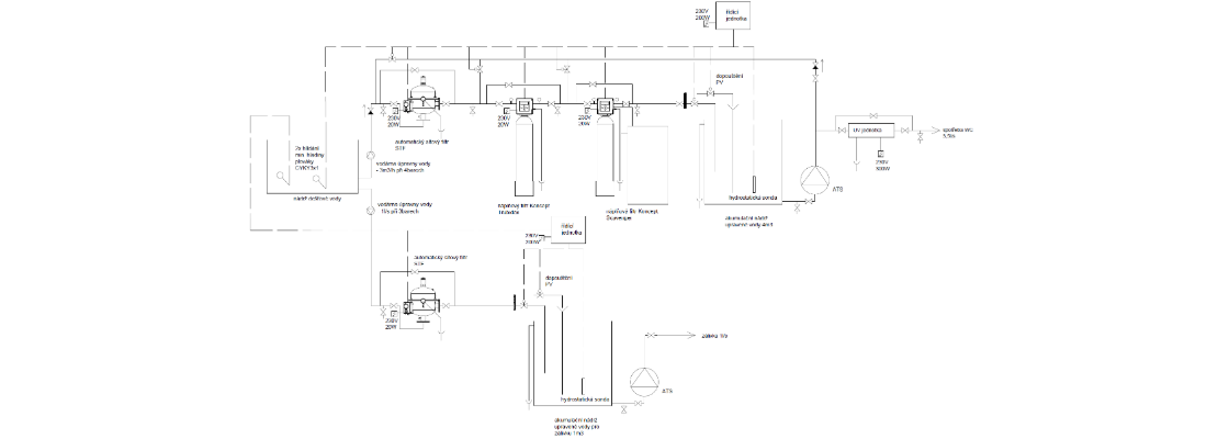
Instalační schéma

Dosažený přínos technologie
Námi navržený systém, který zajišťuje nepřetržitou úsporu pitné vody díky úpravě vod srážkových a jejich využití pro splachování se i v rámci tohoto projektu osvědčil jako maximálně robustní a spolehlivý.
Zároveň bylo i díky němu dosaženo cíle investora v podobě splnění certifikace Leed and Schell 2009, přičemž tato certifikace přísně hodnotí efektivitu zařízení, měření spotřeby vody a alternativní zdroje – právě recyklace a využití dešťové vody je jedním z těchto bodovaných opatření.
Využívání dešťové vody přispívá k nižší ekologické stopě budovy, ale zároveň ke snížení celkové uhlíkové stopy a dlouhodobé udržitelnosti provozu. Efektivní nakládání s vodou zde rovněž snižuje zatížení kanalizační sítě a tím v lokalitě pomáhá předcházet záplavám či erozi.
